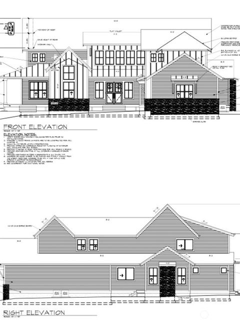
22508 SE 52nd Street, Issaquah, WA 98029 (MLS # 2154274) has 0 beds and 0.00 baths